The current Craighouse proposals (“Scheme 3”) involve very narrow roads, much narrower than the roads there currently, as well as very sharp corners with poor visibility. In May, the council commissioned an independent audit of the proposed roads at Craighouse, which concluded that:
- Larger emergency vehicles, such as fire engines, would find manoeuvring about the proposed site “onerous” and that this issue needed to be considered.
- The movement of larger vehicles around the site “could be a hazard to other traffic and any pedestrians in the area, especially children.”
- There are blind spots, such as the corner proposed to be dug into the embankment by Bevan and this should be considered at the “detailed design stage”.
It is clear that the experts doing the audit expected more detailed designs to be presented, but where are they? Where is the audit of the final designs? Where is the investigation into whether fire engines can get around the site? What is the solution to the blind spots? All we can see is that a refuse vehicle can get to the bin stores (but not the buildings) by doing some very difficult turning manoeuvres in tiny spaces. So, the residents can rest assured that their bins will be emptied (as long as they park their cars very carefully), but if there is a fire, then there could be real trouble getting the fire engines to the buildings inside the site.
What did the council do about all of this?
They wrote a short, badly-spelled letter, asking for £125,000 and said that all of the problems “-which nessesiated the recoomendation for refusal as per my memo of 3 Feb 2014 have been resolved in this submission” [sic]. What about the problems reported in the May audit for the new scheme? Nothing is said about the fire engines, the dangers to children, or the blind spots. All they ask for is £125k and the problems are solved.
What happens if there is a fire? Despite Sundial Properties’ only previous enabling development being destroyed by fire, nothing is said in the application about how fire engines can get into the site. Given the size of the site, what happens if more than one emergency vehicle needs to get in? The roads are only just wide enough for one large vehicle, certainly not two.

Fire engines struggled to put out the fire at Sundial Properties’ enabling development, Leslie House, before the building was gutted. How can we be sure that Craighouse will be better protected? What lessons were learnt from that disaster?
If, in the case of fire, people need to be rescued from the higher floors of New Craig, say, how would a large fire engine get near the building with ladders and hydraulic platforms? Where would they park? All these things should be investigated in complex planning applications and the independent safety audit undertaken on behalf of the council asked these types of questions. But we see no answers in this planning application. Why?
The audit included paragraphs, such as:
“If larger vehicles were to enter some areas then manoeuvring to egress would involve difficult turning and reversing manoeuvres that could be a hazard to other traffic and any pedestrians in the area, especially children.”
“Access for emergency vehicles also needs to be considered.”
“The comments […] above also need to be considered when assessing access for emergency vehicles, especially larger fire engines.”
“However it appears to be the case that not all of the residential areas will have full access for delivery and refuse vehicles. For example the south end of Craiglea Place Access Road does not have a turning head.”
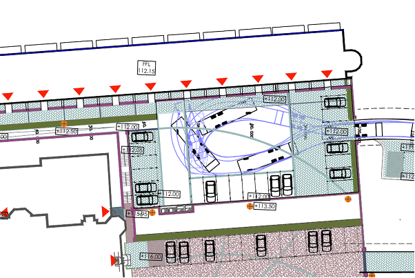
None of these problems are shown to have been resolved. The application includes a diagram of refuse vehicles getting in and out of most of the site (although not Craiglea Place or West Craig). But look at how difficult the turning is. The vehicle has to turn using not only the car-park, but also the pavements in front of people’s houses. In fact, if you look closely, the vehicle has to squeeze a corner in between the tiny gap between two walls. There is no room for error, bad parking, or pedestrians. If large vehicles were to stray onto empty parking spaces, they would damage the drainage systems in the car-parks, causing extra maintenance costs or increasing flood risk. How is such damage to be prevented? No answer is given.
The developer has spent 3 years on this application. In that time, they have constantly talked about the threat of dereliction. But what about the ability for emergency vehicles to get in and out of the site? Even when experts brought it up as an issue, we see no evidence it is taken seriously, either by the developers or planners. Like so many issues, such as the flooding in Balcarres St, we see no evidence expert advice was followed. How shocking for the council to let them get away with it in return for £125,000.
But there is no money. The developers are trying to justify all this newbuild on protected land as an “enabling development” – which has to be the ONLY way of saving the site and an absolute minimum. Unlike other developments, an Enabling Development does not allow for the Council to simply receive money and payments to get around bad planning.
If this is an Enabling Development, the budget already proposed in the application must be the absolute limit. There is no more money for roads, schools or affordable housing. Yet all those departments in the council are responding to this application with simple demands for cash.
Developers in this situation know they are safe from ever having to pay the money. They can simply go to appeal, saying they can’t afford the payments, and the payments will be removed. The developer even cites exactly such a case in their own financial argument. If the developer and planners try to push this through with claims of payments for different council departments, then the council will get nothing and all the problems of this planning application will go ahead.
The fact that after 3 years the developers still have not properly resolved key issues such as these raises more questions about the seriousness of this application. Many suspect that the intention is simply to get permission and sell the site on with planning permission – for someone else to sort out the mess. Will we end up back at the drawing board with yet another developer trying to force through yet more newbuild as has been the case at Quartermile and as is being attempted at Redhall House?
Why do the Council appear to be waving through bad plans that have failed to rectify issues identified months ago? Why are Council departments sending in cursory badly spelled reports to say that all is fine when none of their earlier criticisms appear to be dealt with? Is someone in planning or the Council trying to push this terrible application through and sitting on this departments to wave it through despite the fact it is unworkable?
Mountgrange’s investment fund is said to be “fully invested”. So who is going to fund this terrible plan?
With the strength of support for the community from our local politicians and the level of incompetence demonstrated by these plans and the strength of support for the site and opposition to the plans from the local community, we are confident these plans can be defeated and a better future achieved for Craighouse.
But this must involve those who actually care about and are invested in the future of this site i.e. the local community.
The hearing is on the 3rd Sept at the City Council chambers. It starts at 10am but please turn up early (any time from 9am) to join people outside and show your support for the site. Tell everyone who cares about protections and green spaces in Edinburgh. If this is passed it will be a disgraceful day for the Councillors and the Edinburgh planning department and will signal an open day on our other sites of Great Landscape Value and bring in yet more bogus “Enabling Developments”.
Why are the transport department saying unsafe and unworkable plans are OK for Craighouse as long as the developer contributes enough to the transport department? (Remember none of this “payment” will be used to solve the problems outlined. So what is going on?)


Pingback: What next for Craighouse? | Friends of Craighouse Grounds and Wood