This morning, after pressure from Friends of Craighouse, the council admitted that they got the deadline wrong for the public consultation. We get 4 weeks, instead of 3. So we now have to change our advice letter to residents. The advice letter will go up on this site later today. In the meantime, here is some shocking information about the impact of the proposals on trees.
Much has been said by the developers about their concession to keep the orchard. But their plans show that the fruit trees on the orchard are proposed to be removed.
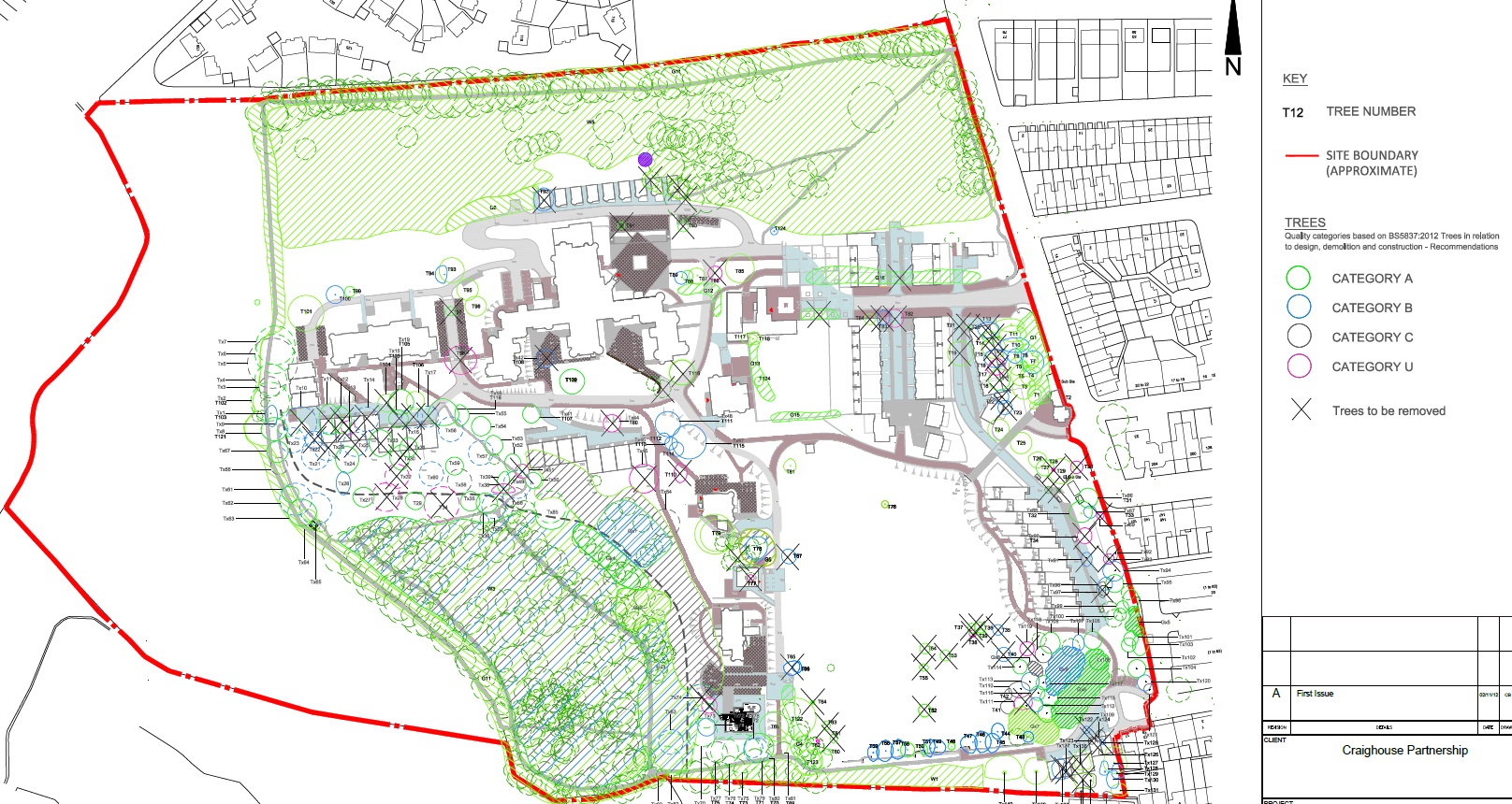
Here is a plan of all the trees to be removed. Trees marked with a cross are proposed to be removed. Click on the image to get the full plan:
If you take out all the proposed car-parks and roads it is easier to see how many trees are being removed:

Plan of trees to be removed as part of Craighouse planning application. Trees marked with a cross are proposed to be removed
You can see a large number of trees around the edge of the site are proposed to be removed, which will have a massive impact on views into the site. Removing trees in the orchard will destroy a lot of what is so special about the place. Removing the trees at the north will mean that views of Craighouse from the north will be dominated by the “Boilerhouse Villas”, and not by that incredible view of New Craig rising above the trees.
There will be a huge impact from these plans on views from all across Edinburgh. The tree removals are a significant part of that impact. We will be releasing more shocking information about views and wildlife impacts (from the massive amount of information in the planning application) over the course of the next couple of weeks on the blog.
Here are some of the trees proposed to be removed:






